Tel:021-54082321 Fax:021-54106143
 进口阀门闸阀球阀截止阀调节阀蝶阀止回阀减压阀疏水阀旋塞阀柱塞阀呼吸阀平衡阀针型阀阻火器排气阀排泥阀放料阀底阀水力控制阀门隔膜阀过滤器管夹阀安全阀电磁阀 |刀型闸阀 |
产品分类
 
 
 业务联系
 人才招聘
 客服电话
 在线联系
   首页 - 产品展厅 - 产品介绍  
  产品名称: YD43H先导式高灵敏减压阀
  产品型号: YD43H
  询问YD43H先导式高灵敏减压阀价格
 
  咨询电话:021-54082321 黄先生13045666422
 相关产品
 YD43H先导式高灵敏减压阀
 YG13H/Y内螺纹高灵敏度蒸汽减压阀
 Y13H/Y内螺纹蒸汽减压阀
 高灵敏蒸汽减压阀
 

YD43H先导式超大膜片高灵敏度减压阀在普通减压阀的基础上做了很大的改进。膜片采用了新型材料,并大大加工了工作面积,因此阀门上游压力或下游负荷细微的变化都能及时准确的反馈到主阀膜片,来调节主阀的开度,确保下游压力的稳定。
先导式超大膜片高灵敏度减压阀的另一个突出的特点为:同一个阀体上可安装和互换多个导阀在稳压的同时,实现温度控制、上游压力的控制、远程的开关控制等。

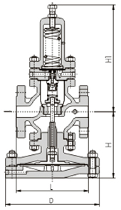
尺寸图
一、先导式超大膜片高灵敏度减压阀主要技术参数和性能指标

公称压力Mpa

2.5

壳体试验压力Mpa*

3.75

密封试验压力Mpa

2.5

最高进口压力Mpa

2.5

出口压力范围Mpa

0.02-1.6

压力特性偏差Mpa△P2P

GB12244-1989

流量特性偏差MpaP2G

GB12244-1989

渗漏量

GB12245-1989

*:壳体试验不包括膜片、阀盖。

二、先导式超大膜片高灵敏度减压阀主要零件材料

零件名称

零件材料

阀体 阀盖

WCB

阀座

2Cr13

阀瓣

2Cr13

阀杆

2Cr13

膜片

1Cr18Ni9Ti

调节弹簧

60Si2Mn


三、先导式超大膜片高灵敏度减压阀流量系数Cv

DN

15

20

25

32

40

50

Cv

2.9

5.3

8.6

11.6

16.5

29.1


四、先导式超大膜片高灵敏度减压阀连接尺寸

DN

L

H1

H

D

15

147

235

145

207

20

154

235

145

207

25

160

235

145

207

32

180

250

160

220

40

16

250

160

220

50

230

270

180

220

友情连接: 正封阀门
瑞克阀门
地址:上海闵行区莘松路958弄大浪湾道21号703 邮编:200232 电话:021-54082321 传真:021-54106143
Copyright 上海沪申阀门有限公司 all Rights Reserved.